Plan Library

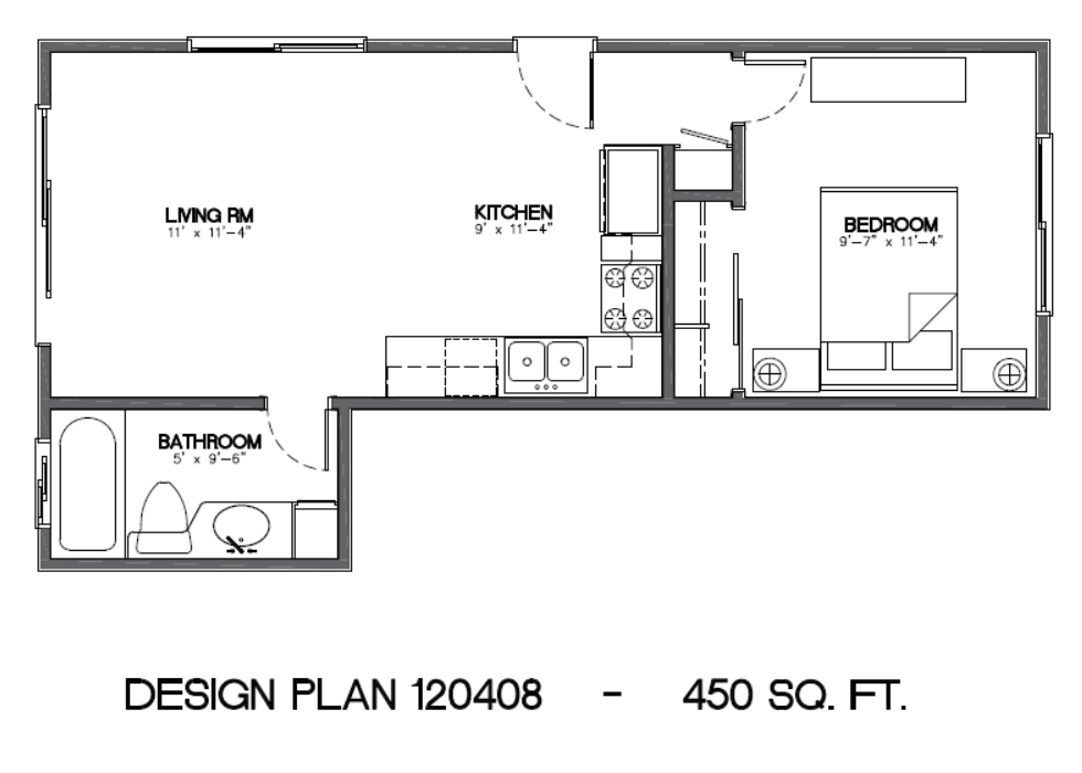
Explore a selection of our pre-designed floor plans library—featuring custom homes, remodels, and Accessory Dwelling Units (ADUs). Each sketch reflects our focus on efficient design, functional layouts, and California code compliance.

Schedule a Project Consultation

Design-focused guidance. No obligation.

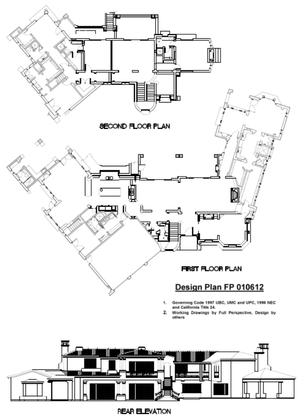
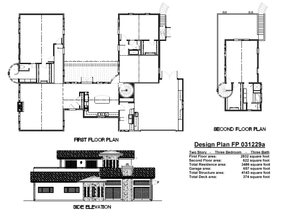
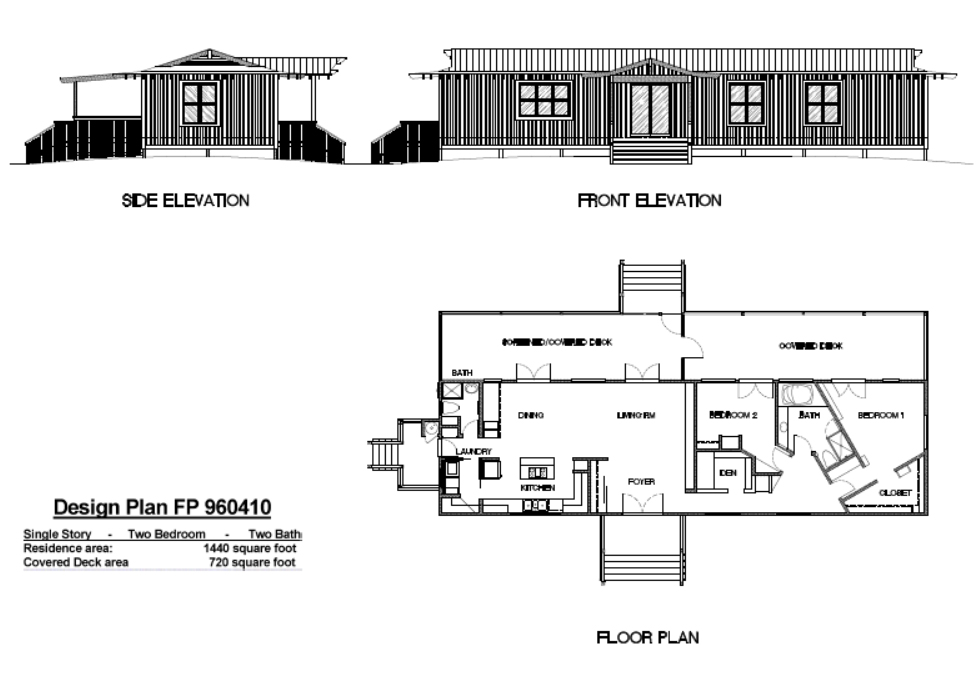
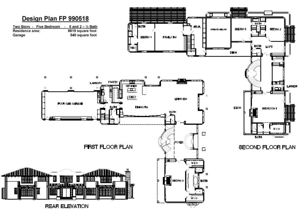
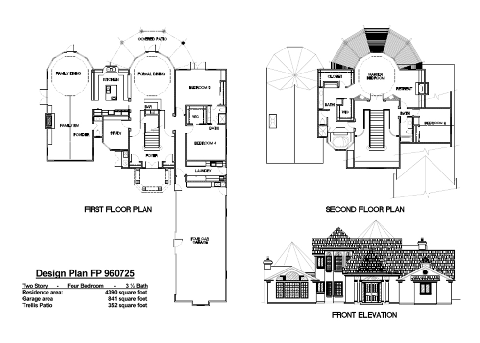
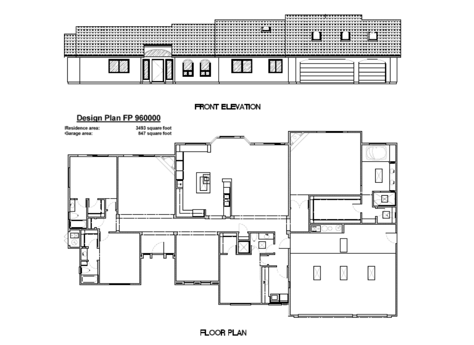
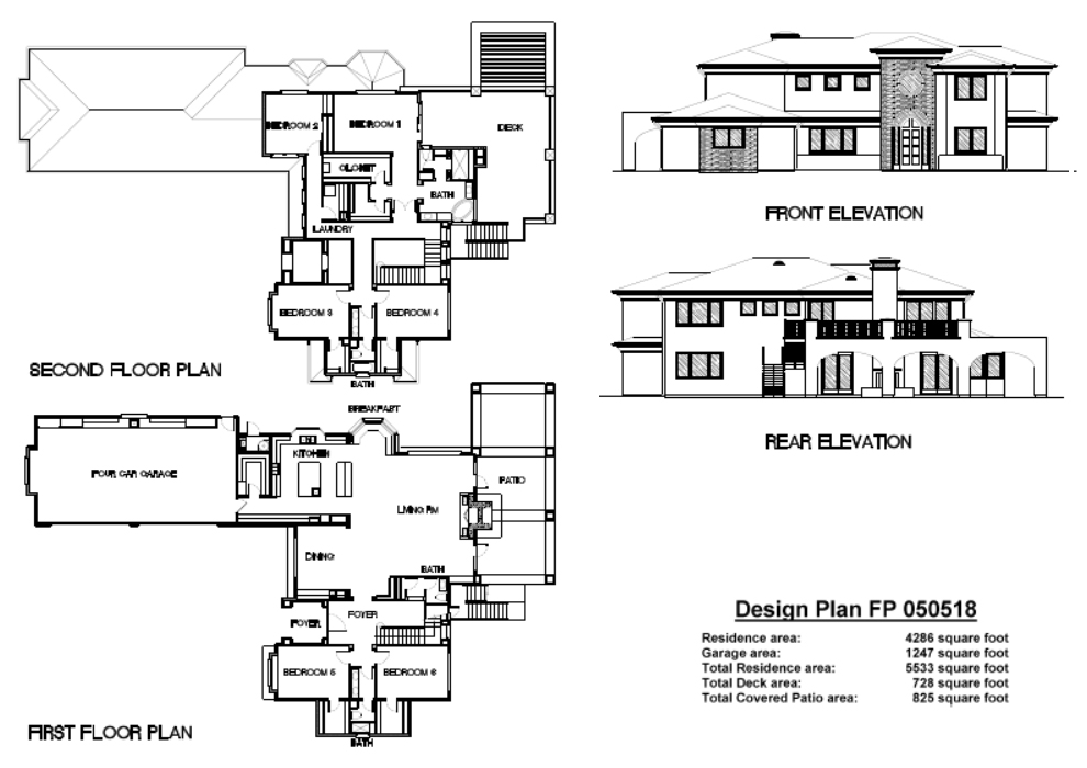
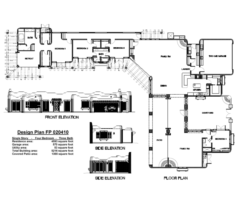
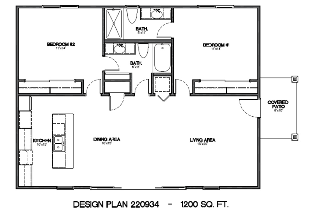
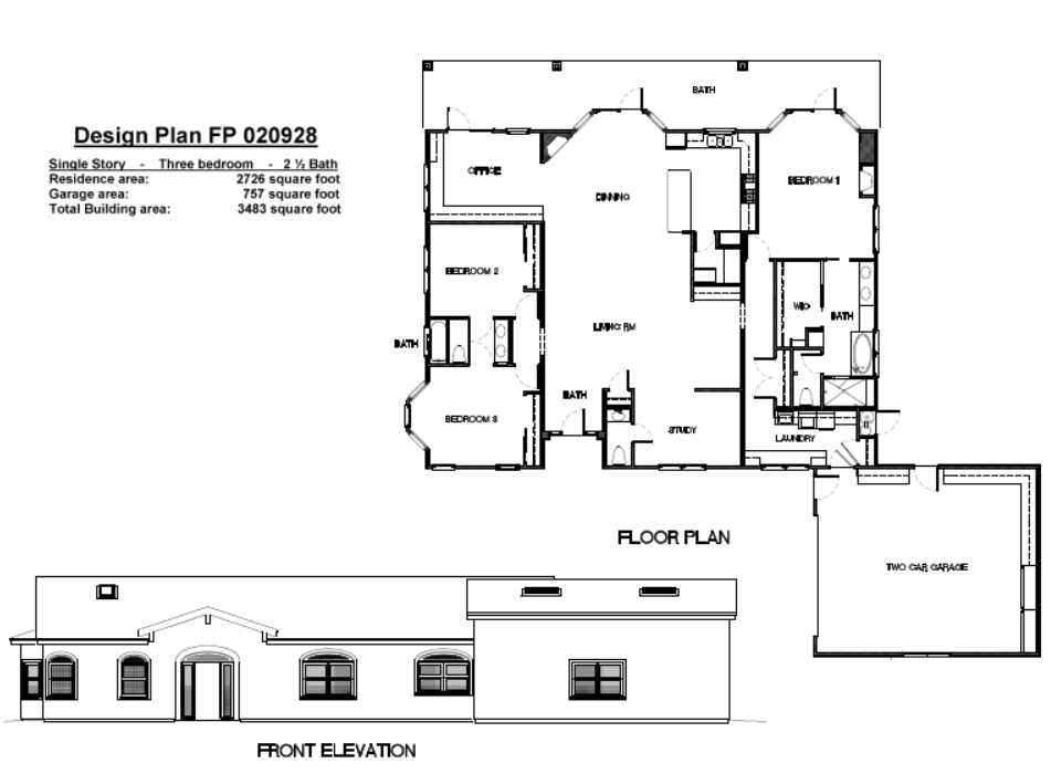
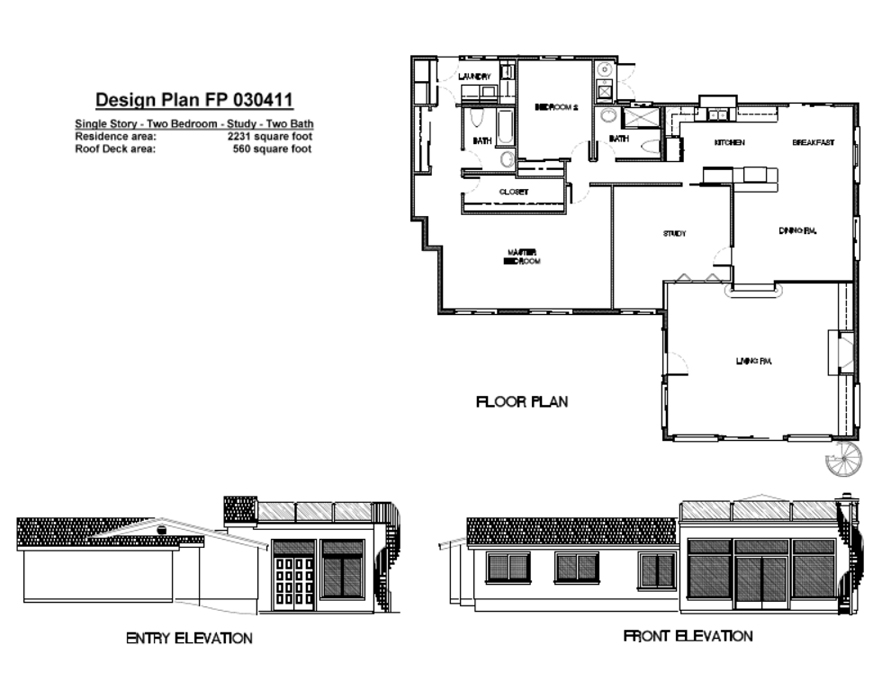
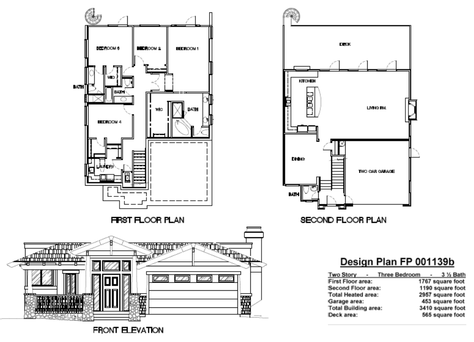
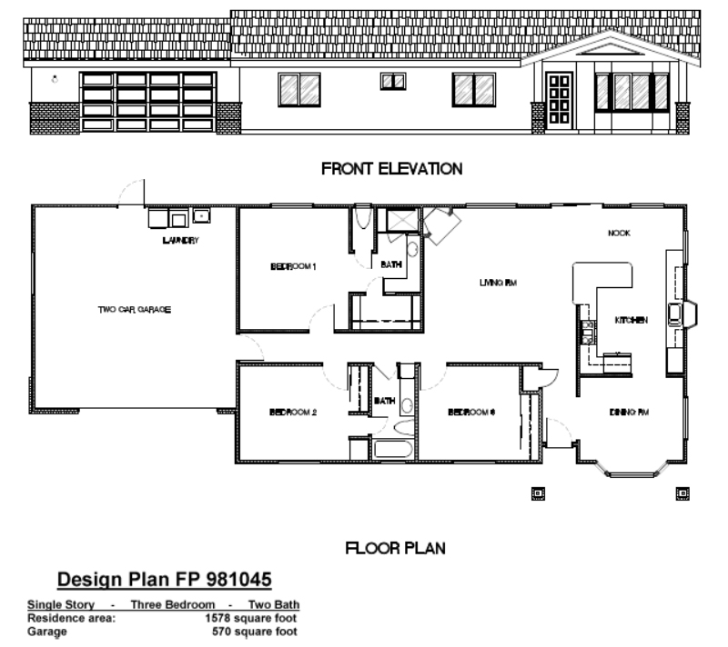
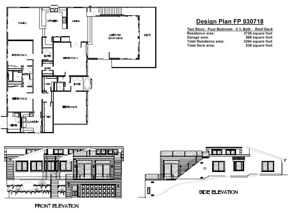
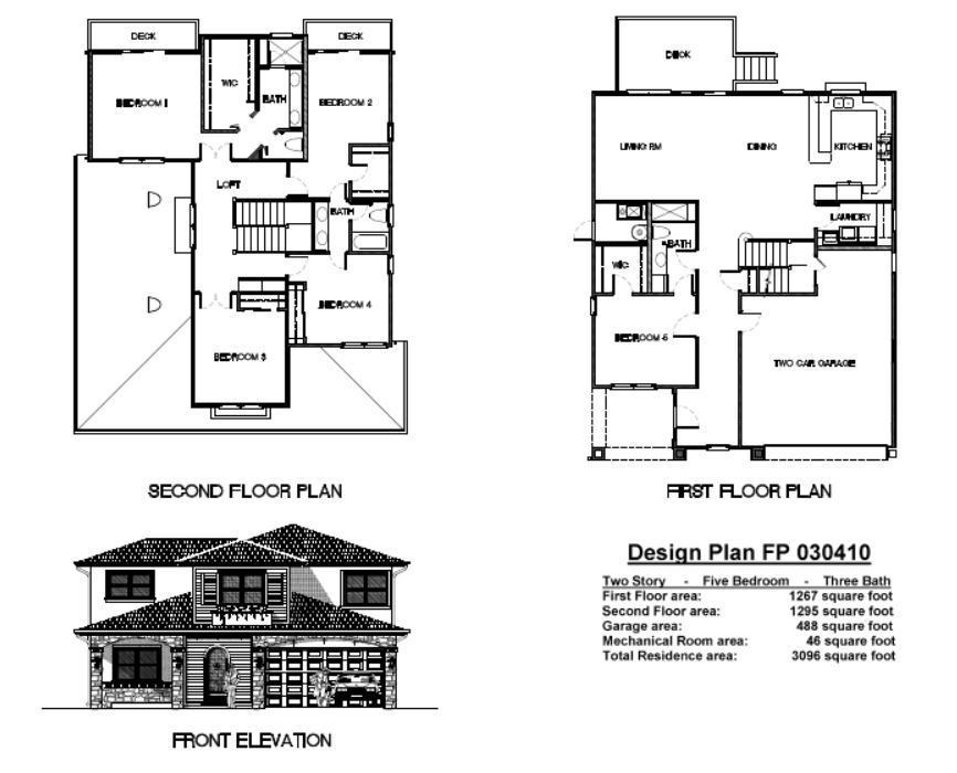
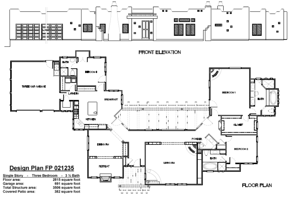
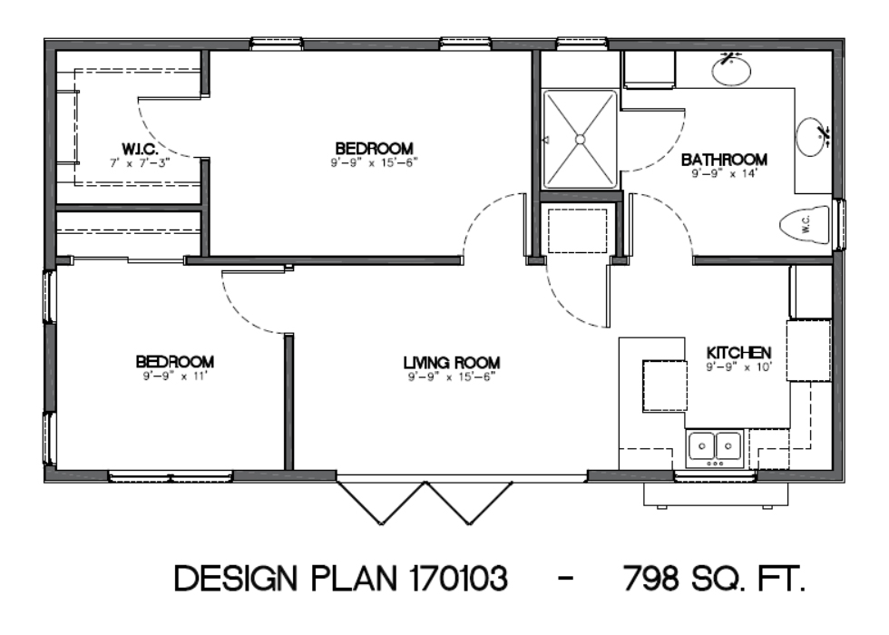
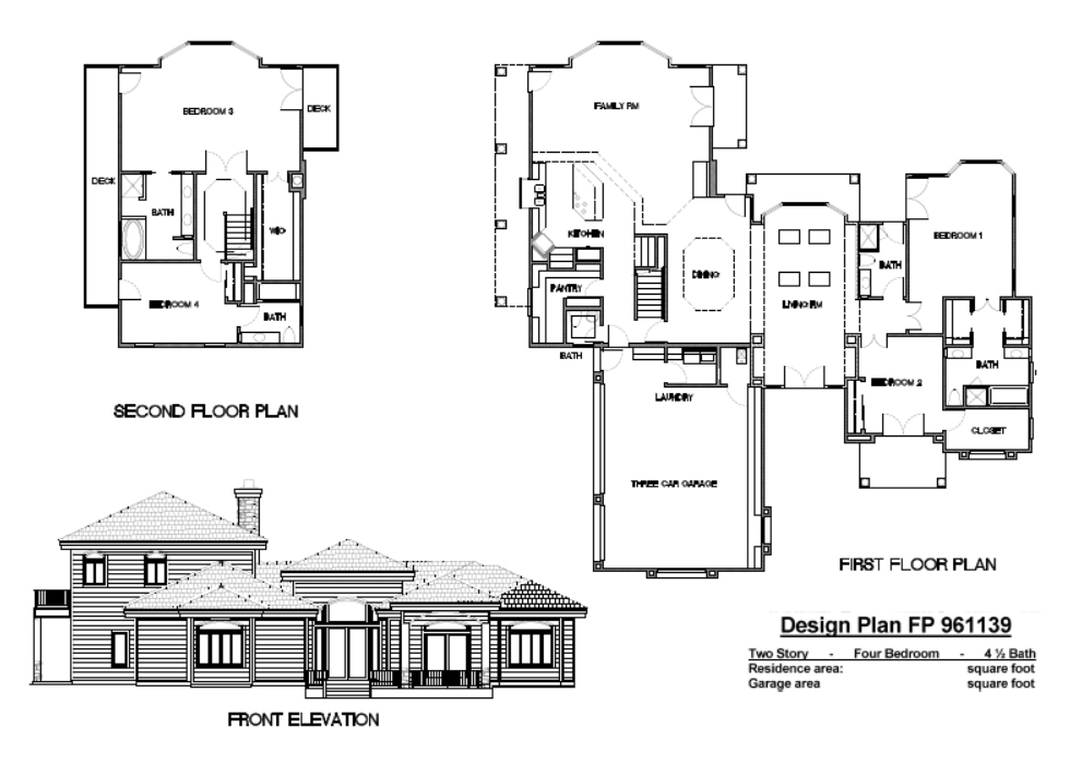
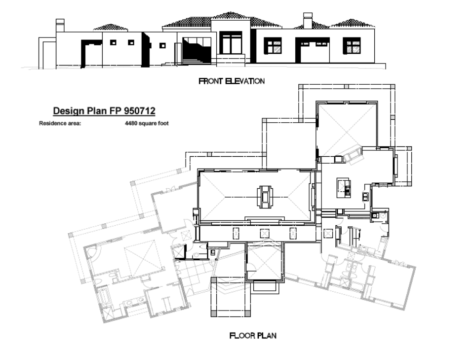
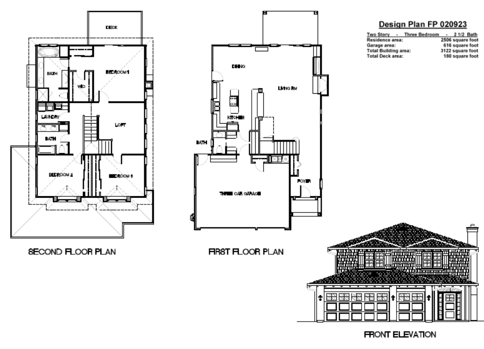
Pre-Designed Home & ADU Plans

Looking for inspiration or a head start on your next project Plan? Explore our collection of professionally crafted floor plan sketches—ranging from custom home designs to fully functional Accessory Dwelling Units (ADUs).

The dream of building a home often hits a wall when faced with the reality of architectural fees, which can eat up 10% to 15% of a total budget before a single nail is driven. Enter Pre-Designed Home and ADU (Accessory Dwelling Unit) Plans: the “ready-to-wear” solution for the modern housing market.

 

Custom Home

ADU's

What You’ll Find:

Concept Sketches

Plan for new homes, additions, and remodels

ADU Floor Plans

Plan ideal for rentals, guest houses, or multigenerational living

Flexible Designs

Plan that can be customized to fit your specific lot or city requirements

Fast-Track Your Project

These sample plans offer a strong foundation for permitting and construction. Start with a sketch, then let us tailor it to your exact needs.

plan library

Ready to bring your vision
to life?

Contact us today for a free consultation and quote. Let’s bring your vision to life with expert design and quality service.

Main Menu